U organizaciji bolske knjižnice dr. sc. Branko Matulić, prorektor za kvalitetu, kulturu i umjetnost Sveučilišta u Splitu, održao je predavanje „Lovrečina – mjesto ranokršćanskog krštenja“ 19. srpnja 2019. u dvorištu knjižnice.
Autori projekta „Terra Croatica – Bročko blogo“, ravnateljica „Hrvatske čitaonice“ Jadranka Nejašmić i Šime Strikoman, obogatili su projekt scenom obreda krštenja na lokalitetu Lovrečina gdje možemo pratiti kontinuitet života od kasne antike sve do srednjega vijeka.
Branko Matulić nakon sjecanja diplome 1989. god. počinje raditi kao suradnik, a 1990. zapošljava se kao restaurator u Ministarstvu kulture gdje postaje voditelj novoosnovane radionice za konzervaciju – restauraciju zidnog slikarstva i mozaika.
Upisuje poslijedipl. studij u Interuniverzitetskom centru u Dubrovniku pri Sveučilištu u Zagrebu gdje magistrira 1994. god.
Od 1997. vanjski je suradnik na odsjeku konzervacije – restauracije pri Umjetničkoj akad. Sveučilišta u Splitu.
God. 1998. postaje voditelj Odsjeka za zidno slikarstvo, mozaik i štuko pri Hrvatskom restaurat. zavodu, Odjel u Splitu.
Doktorira na Filozofskom fak. u Zadru i postaje vršitelj dužnosti predstojnika Odsjeka za konzervaciju – restauraciju.
Od 2005. god. radi na Umjetničkoj akad. Sveučilišta u Splitu.
Od 2009. god. u dva uzastopna mandata obnaša dužnost dekana i postaje član nacionalnog Matičnog odbora za područje umjetnosti.
Od 2010. predavač je i mentor na sveučilišnom poslijediplomskom doktorskom studiju Sveučilišta u Zadru.
Od 2013. god. prodekan je za izgradnju i razvoj Umjetničke akad. u Splitu, a u razdoblju od 2014. do 2018. god. prorektor za kvalitetu, kulturu i umjetnost Sveučilišta u Splitu.
Od tada je redovni profesor Umjetničke akademije u Splitu.
Dobitnik je godišnje državne Nagrade Vicko Andrić za izvanredna postignuća u području zaštite kulturne baštine za 2012. godinu.
U 2017. godini dobitnik je priznanja Studenskog zbora Sveučilišta u Splitu za izniman doprinos radu Studenskog zbora te priznanja za ukupni i pojedinačni doprinos u izradi Strategije razvoja urbane aglomeracije Split.
Objavio je četiri autorske knjige: Strateškim upravljanjem do najboljeg sveučilišta, Priručnik za unapređenje kompetencija nastavnika u visokom obrazovanju, Temeljni pojmovi konzervacije-restauracije zidnih slika i mozaika i slikar Pavao Pave Gospodnetić – postirski i brački ‘Bukovac’.
Urednik je zbornika Verba volant – Scripta Manet, u čast akadem. Stjepana Krasića i
Strateškim upravljanjem do najboljeg sveučilišta.
Sudjelovao je u brojnim konzervatorsko-restauratorskim projektima na javnim objektima kulturne baštine.
Nabrojit ću samo radove na Braču:
na starokršćanskoj bazilici u uvali Lovrečina i Zastivonju kod Postira,
crkvi sv. Stjepana u Pučišćima,
crkvi sv. Luke i u župnoj crkvi sv. Fabijana i Sebastijana u Donjem Humcu,
crkvi sv. Margarite u Nerežišćima,
starokršćanskoj bazilici u Povljima,
na obnavljanju kasnoantičkih freski u crkvi sv. Ivana u Bolu i
zidnim i stropnim oslicima u salonu obitelji Šimetović u Bolu.
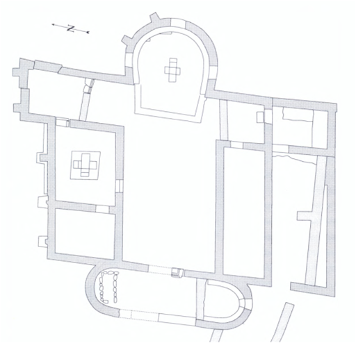
Ranokršćanska crkva iz 6. st., u uvali Lovrečina istočno od Postira, jednobrodna je građevina s predvorjem, nizom pomoćnih prostorija i krsnim zdencem. U njoj je križna grobnica u kojoj su se čuvale relikvije sv. Lovre kome je crkva posvećena. Crkva se nalazi unutar zidina samostanskog sklopa koji je sagrađen nad antičkim ruševinama rustične vile. Posebno je lijepa krstionica, križnog oblika, sa stepenicama na južnoj, zapadnoj i sjevernoj strani i uzdignutim podankom. Nad njim je postavljen ciborij na četiri stupa s kapitelima i kamenim gredama s križevima koji daje dostojanstvo obredu krštenja.



Postira, Lovrečina – sv. Lovre
Krstionica s krsnim zdencom i ciborijem













